產品介紹
咨詢服務熱線:13957717877
產品概述
資料下載
相關產品
相關資訊


GYM7DC系列直流塑殼斷路器產品特點:
1、GYM7DC系列直流塑料外殼式斷路器(以下簡稱斷路器),其額定工作電壓至
DC1500V、額定絕緣電壓 1500V、額定沖擊耐受電壓達到 12kV、額定電流 10A~630A。
2、本斷路器可垂直安裝(即豎裝),亦可水平安裝(即橫裝)。
3、本斷路器產品執行下列標準:
4、IEC 60947-1 及 GB/ T 14048.1 總則
5、IEC 60947-2 及 GB/T 14048.2 低壓斷路器。
GYM7DC系列直流塑殼斷路器正常工作條件:
1、海拔高度 2000m 及以下,高海拔降容系數見降容系數表;
| 海拔高度(m) | 2000 | 2500 | 3000 | 3500 | 4000 | 4500 | 5000 |
| 工作電流修正系數 | 1 | 1 | 0.98 | 0.97 | 0.96 | 0.95 | 0.94 |
| 短路分斷能力修正系數 | 1 | 1 | 0.83 | 0.77 | 0.71 | 0.67 | 0.63 |
| 工頻耐壓修正系數 | 1 | 1 | 0.89 | 0.85 | 0.80 | 0.77 | 0.73 |
2、周圍介質溫度不高于 +70℃ ( 對船用產品為 +45℃ ) 和不低于 -25℃(低于 -25℃
需定制 LC 低溫產品),24h內的平均值不超過 +35℃,高于 +50℃時,用戶需降容使用,
降容系數見表(3);
| 型號 | 殼架等級額定電流(A) | 50℃ | 55℃ | 60℃ | 65℃ | 70℃ |
| GYM7DC-125/2300 | 250 | 1 | 0.95 | 0.93 | 0.91 | 0.88 |
| GYM7DC-250/2300 | 250 | 1 | 0.95 | 0.93 | 0.91 | 0.88 |
| GYM7DC-320/2300 | 250 | 1 | 0.95 | 0.93 | 0.91 | 0.88 |
| GYM7DC-400/2300 | 400 | 1 | 0.93 | 0.91 | 0.89 | 0.85 |
| GYM7DC-630/2300 | 630 | 1 | 0.92 | 0.90 | 0.89 | 0.83 |
3、儲存溫度 -40℃ ~+75℃;
4、安裝地點的空氣相對濕度在溫度為 +40℃時不超過 50%,在較低溫度下可以有
較高的相對濕度,例如 20℃時達 90%。對由于溫度變化偶爾產生的凝露應采取措施;
5、TH(三防型)符合 GB/T2423.4、GB/T2423.18 標準要求,能耐受潮濕空氣、鹽霧、
油霧、霉菌的影響;
6、傾斜度為 ±22.5°;
7、在無爆炸危險的介質中,且介質為不足以腐蝕金屬和破壞絕緣的氣體與導電塵埃的
地方;
8、在沒有雨雪侵襲的地方。

GYM7DC系列直流塑殼斷路器型號及含義:

GYM7DC系列直流塑殼斷路器型號及含義:
| 塑殼式斷路器 | GYM7DC-125 | GYM7DC-250 | GYM7DC-320 | GYM7DC-400 | GYM7DC-630 | ||
| 殼架等級電流In: | 10A、16A、 20A、25A、 32A、40A、 50A、63A、 80A、100A、 125A | 100A,125A, 140A,160A, 180A,200A, 225A,250A | 100A、125A、 140A、160A、 180A、200A、 225A、250A、 280A、315A. | 250A、 315A、 350A、 400A、 | 400A、500A、630A | ||
| 數: | 2P | 2P | 2P | 2P | 2P | ||
| 額定工作電壓 Ue(V,AC) | DC250V | DC1000V | DC1500V | DC1500V | DC1500V | ||
| 額定絕緣電壓 Ui (V): | 1000V | 1500V | 1600V | 1600V | 1600V | ||
| 額定沖擊耐受電壓 Uimp (kV): | 0.8kV | 0.8kV | 1.2kV | 1.2ky | 1.2ky | ||
| 額定運行短路分段能力 lcs(%lcu) | DC110V | 35kA | |||||
| DC250V | 25kA | ||||||
| DC500V | 35kA | ||||||
| DC750V | 25kA | 85kA | 85kA | 85kA | |||
| DC1000V | 15kA | 50kA | 50kA | 50kA | |||
| DC1200V | 35kA | 35kA | 35kA | ||||
| DC1500V | 20kA | 20kA | 20kA | ||||
| 額定限短路分段能力 lcu (kA): | DC110V | 35kA | |||||
| DC250V | 25kA | ||||||
| DC500V | 35kA | ||||||
| DC750V | 25kA | 85kA | 85kA | 85kA | |||
| DC1000V | 15kA | 50kA | 50kA | 50kA | |||
| DC1200V | 35kA | 35kA | 35kA | ||||
| DC1500V | 20kA | 20kA | 20kA | ||||
| 操作 性能 (次) | 電氣考命 | 5000次 | 2000次 | DC1000V2000次 DC1500V1000次 | DC1000V2000次 DC1500V1000次 | DC1000V2000次 DC1500V1000次 | |
| 機械考命 | 免維護考命 | 10000次 | 10000次 | 10000次 | 10000次 | 10000次 | |
| 可維護考命 | 20000次 | 20000次 | 20000次 | 15000次 | 15000次 | ||
GYM7DC系列直流塑殼斷路器產品接線:


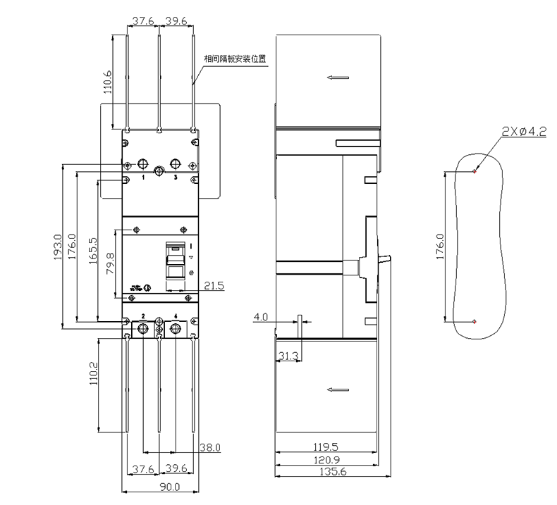
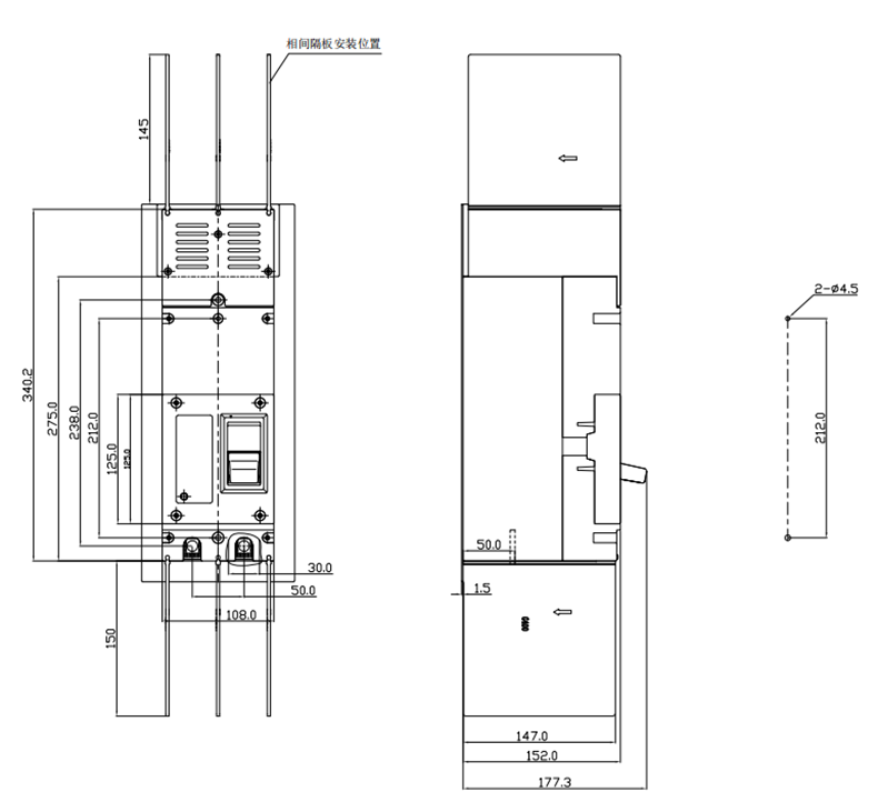
GYM7DC系列直流塑殼斷路器產品尺寸:
GYM7DC-250產品尺寸

GYM7DC-320產品尺寸

GYM7DC-400、630產品尺寸

GYM7DC系列直流塑殼斷路器特性曲線:

優惠券
我們的微信
13957717877
13957796089